Croatian-American wins American Institute of Architects Award
- by croatiaweek
- in Business

Croatian-American architect wins American Institute of Architects Award (Photo: Supplied)
A Croatian-American architect has won a prestigious American Institute of Architects Award (AIA).
In 2018, Frano Tomic was looking for a new house for his family in the Bridgeport neighborhood of Chicago, Illinois, a historically Croatian enclave dating back to the late 1800s.
He sought out our featured architect today and fellow Croatian Ivan Kutlesa, AIA, NCARB, LEED Green Associate, President of Kutlesa/Hernandez Architects.

Ivan Kutlesa (Photo: Supplied)
On December 3rd, 2023, his new house at 2521 S. Throop St., also known as the Tomic Residence, was awarded the AIA Distinguished Building Award – Citation of Merit in recognition of excellence in Architectural Building Design and Leadership at their Annual Dinner & Design/Honor Awards reception.

Tomich Residence Chicago (Photo: Supplied)
This is the 2nd such prestigious award for Kutlesa/Hernandez Architects in the past 2 years. It is awarded to firms and projects from the highest professional organization in the USA, the American Institute of Architects.
Kutlesa/Hernandez Architects has been practicing architecture in the United States of America and in the Republic of Croatia for over 20 years.
Kutlesa was born in Chicago to Croatian émigré parents who came to the USA in the early 1960s from the area around Tomislavgrad, BiH. His late father Jerko is from the village of Prisoje and his mother Jela from nearby Raseljke.
Notably, he is the cousin of the Archbishop of Zagreb, Monsignor Drazen Kutlesa and the Minister of Foreign and European Affairs, dr. sc. Gordan Grlic-Radman.
Ivan attended the University of Illinois at Chicago where he earned his Bachelor of Architecture in Design in 1992, with a year studying abroad at the Ecole de Architecture Unite Pedagogique, Versailles, France. Ivan lives in Chicago, Illinois with his wife Ines, (nee Matijas) who is also of Croatian heritage and who’s family hail from Zagreb/Split and the Island of Hvar.

Ivan Kutlesa with his cousin the Archbishop of Zagreb, Monsignor Drazen Kutlesa (Photo: Supplied)
Mr. Tomic tasked Ivan to design a new single-family residence on a small City of Chicago lot, 25’x100’. Plans were developed for a new, 2 story, masonry and frame residential building with 3,000 sf, 3 bedrooms, 3 ½ bathrooms plus a bonus bedroom in the basement.

South elevation (Photo: Supplied)
The basement, which sits partially below grade, contains a lower-level walk-out in the rear to a patio.
The house boasts a full rooftop deck, green elements for reduction of stormwater runoff and heat island effect, grill line entertainment built-ins and spectacular views of the City of Chicago skyline. Using the unusually shortened property depth for the city of Chicago, 100’ vs. 125’, which is typical, Ivan created hanging balconies on the front and rear decks on the 1st and 2nd floors.

North elevation (Photo: Supplied)
With a side yard main entry to the building elevated from grade in the front, Ivan was able to utilize the entire width of the 19’ wide building at front and rear facades for windows and views. This created unobstructed spaces on the building’s edges.
By eliminating any common building elements typical for this type of Archetype in the City, Ivan freed up these areas for the very generous open space plans for the living quarters and master bedroom suite facing the street.

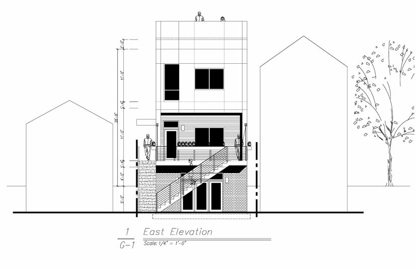
East elevation

West elevation Photo: Supplied)
The use of modern brick, IPE Brazilian Wood rainscreen accents and James Hardie board siding translates and updates the historical Chicago house to the 21st Century. The modern aesthetic and sleek lines of the house are a trademark of Ivan’s design vocabulary and are expressed within the interiors as well.

2521 S. Throop St (Photo: Supplied)
Kutlesa’s love and passion for Architecture has expanded further in Croatia with his development company Isola Boa LLC, cofounded with his partners, the famous singer and award-winning interior designer from Philadelphia, fellow Croatian, Tommi Mischell and Ed P Golden, the esteemed American Architect from Boston.

Interior (Photo: VHT Studios/Supplied)

Interior (Photo: VHT Studios/Supplied)
Their focus is on the mission of bringing a fresh perspective to Croatia’s tourism industry from a Croatian American owned business. With several decades of experience between them in the Western Hemisphere and their sensitivity to the traditional Croatian culture, they are singularly positioned to uniquely transform the tourism and hospitality industries in the Dalmatian region for years to come.

Ivan Kutlesa & Frano Tomich (Photo: Supplied)
Kutlesa is a member of the Association of Croatian American Professionals – Chicago Chapter and frequently visits Croatia for business and to visit his extended family, with whom he maintains close and deep connections to this day.

Ivan Kutlesa (far right) with Isola Boa and former Croatian president Kolinda Grabar-Kitarovic (Photo: Supplied)
In the long and storied history of over 150 years of Croatians living in Bridgeport, this truly one-of-a-kind and modern house is the only award-winning building designed by, for, and built by Croatians.

Kutlesa Hernandez Architects & guests. Photo: Supplied)
Congratulations!